






Ice Cube
The design concept emerges from the need to balance function, aesthetics, and sustainability in a highly versatile location. This site, with its strategic importance, calls for a compact building volume that stands as a landmark. To achieve this, the building adopts a cube-like form derived from the stacking of square floor plans, ensuring functional eciency and structural clarity
At its core, the building serves as a chiller—a refrigerator for data. The visual metaphor of an ice block encapsulates the essence of a data center, emphasizing the cooling process integral to its operation. Beyond its functionality, the cooling system generates residual heat, a resource that contributes to a sustainable infrastructure. This closed-loop process symbolizes eciency and cleanliness, mirrored in the building's pristine white façade.
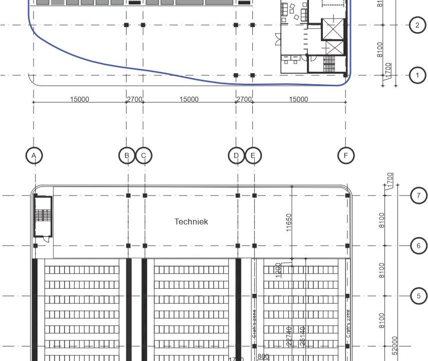
The "Ice Cube" design takes cues from its natural surroundings, reflecting the greenery and water that define the environment. Its soft, natural contours harmonize with the landscape, allowing the structure to merge seamlessly into its setting. By combining high-performance functionality with a design that respects and enhances its context, the building becomes a visual and functional asset, embodying modern architectural ideals while remaining firmly rooted in its environment
At its core, the building serves as a chiller—a refrigerator for data. The visual metaphor of an ice block encapsulates the essence of a data center, emphasizing the cooling process integral to its operation. Beyond its functionality, the cooling system generates residual heat, a resource that contributes to a sustainable infrastructure. This closed-loop process symbolizes eciency and cleanliness, mirrored in the building's pristine white façade.
The "Ice Cube" design takes cues from its natural surroundings, reflecting the greenery and water that define the environment. Its soft, natural contours harmonize with the landscape, allowing the structure to merge seamlessly into its setting. By combining high-performance functionality with a design that respects and enhances its context, the building becomes a visual and functional asset, embodying modern architectural ideals while remaining firmly rooted in its environment
- CategoryArchitecture



